Studio · 1 rooms in Carre d'Argent

198,000
Bedrooms: 0 Rooms: 1 Carre d'Argent

Description

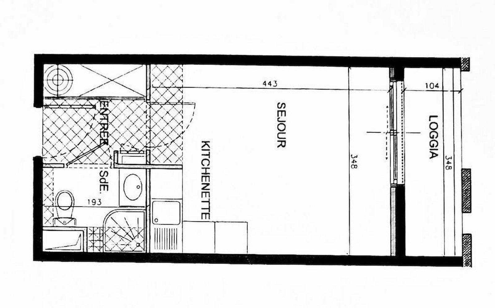
This studio apartment is situated on the prestigious boulevard Victor Hugo in Nice, within a distinguished condominium designed by architect Jean-Michel Wilmotte in 2010. The 21 m² space is efficiently arranged, maximizing every square meter. Located on the third floor of a secure building with an elevator, the studio features a bright living area enhanced by a large picture window that opens onto a 3.5 m² balcony. This outdoor space is perfect for a small bistro table and two chairs, offering a pleasant spot to enjoy the surroundings.

The kitchen is ready to be refreshed and equipped to suit your preferences, while the bathroom and general services are in excellent condition. The studio offers comfort with its reversible air conditioning, and cold water is supplied collectively. Hot water is generated individually through an electric boiler. This property is a rare find, ideal for use as a pied-à-terre, a rental investment, or a first-time purchase in one of Nice's most desirable locations.