3 Bedroom · 5 rooms in Musicians Quarter

1,480,000
Bedrooms: 3 Rooms: 5 Musicians Quarter

Description

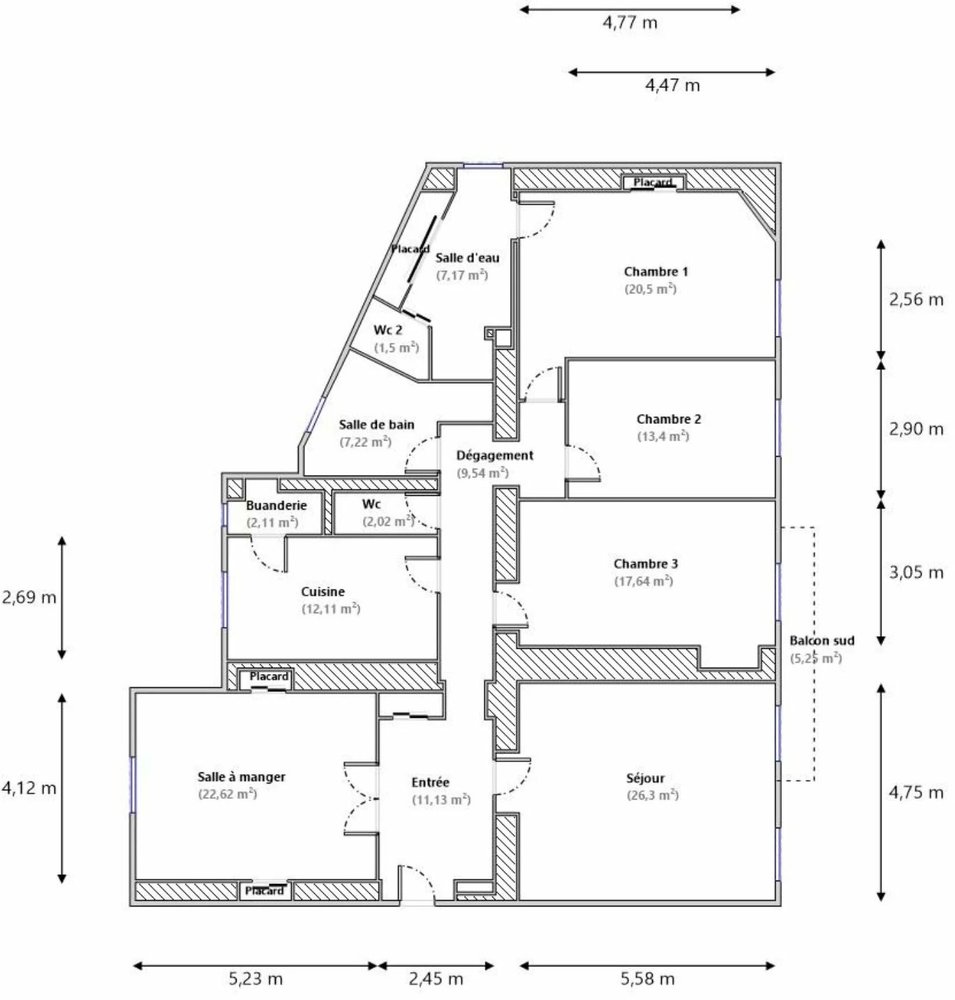
This elegant five-room apartment is situated in the vibrant heart of Victor Hugo. It boasts a spacious living room, a formal dining area, and a fully equipped kitchen, perfect for both everyday living and entertaining. The property includes three comfortable bedrooms and two well-appointed bathrooms, offering ample space for family and guests. Additional features include a convenient laundry room, ample storage options, and a charming south-facing balcony that invites plenty of sunlight. A cellar provides extra storage space. The apartment's generous proportions and sunny aspect make it a rare find in this sought-after area.