2 Bedroom · 3 rooms in Carre d'Or

424,000
Bedrooms: 2 Rooms: 3 Carre d'Or

Description

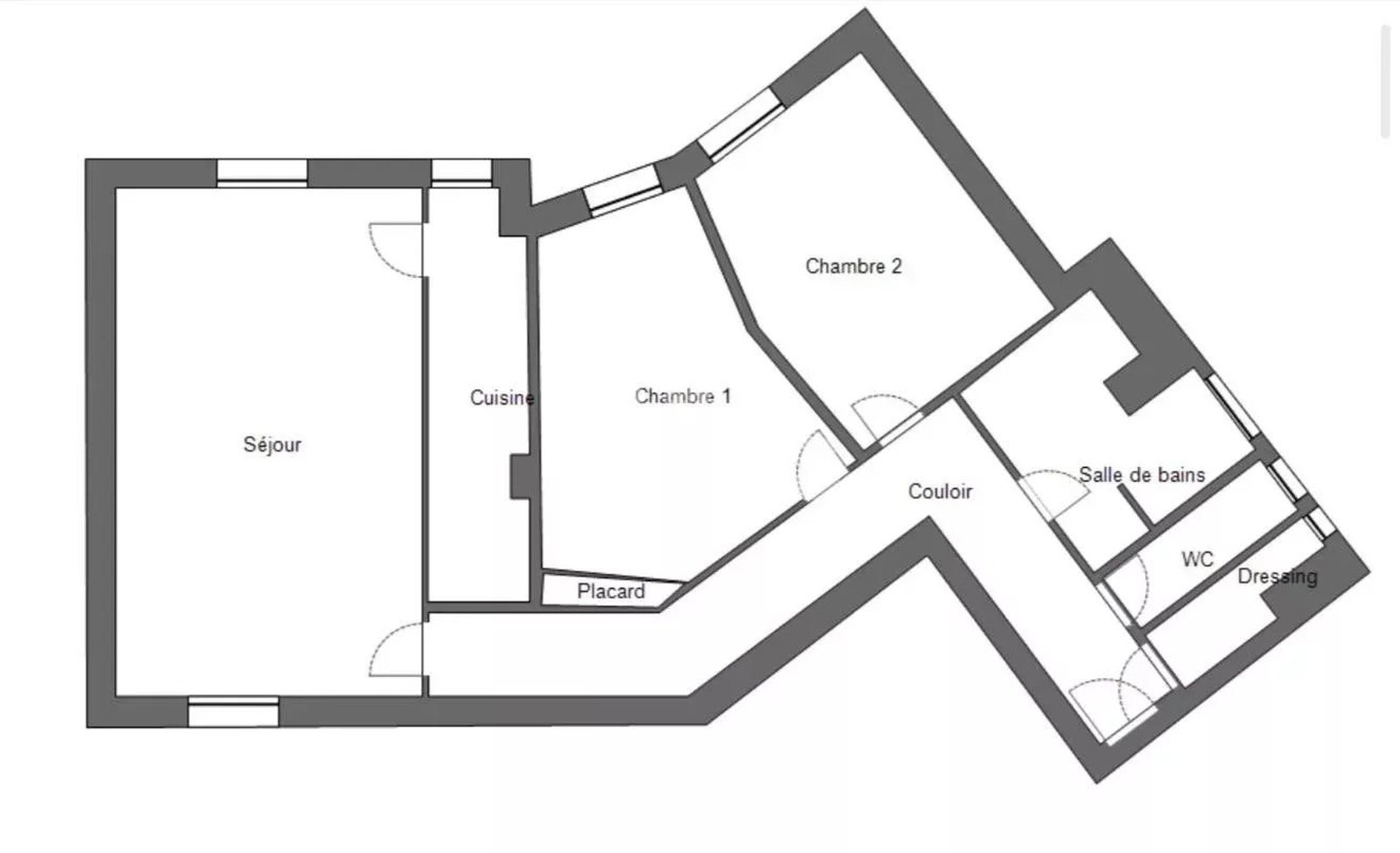
In the heart of the Promenade des Anglais, within the iconic Negresco building, this 87 m² apartment offers a rare and prestigious address on the Côte d'Azur. Positioned on the 3rd floor and accessible by elevator, the property is ripe for renovation, presenting an opportunity to reimagine the space while preserving the historic charm of the building.

The apartment includes a living room, an independent kitchen, two bedrooms, a bathroom, an individual toilet, a storage room, and a corridor that connects all the rooms. The layout is functional, and the generous space offers flexibility for various development projects tailored to your preferences.

Monthly charges for the apartment are €350, and the property tax amounts to €1,800 annually.